Nằm trong khu vực đông đúc tại huyện Phú Giáo, Bình Dương, mẫu nhà 5x10m 3 phòng ngủ là công trình nhà phố được lấy cảm hứng từ nền kiến trúc hiện đại, phối tone màu sáng thể hiện sự thịnh vượng cho gia đình. Dù diện tích mảnh đất không quá rộng lớn, nhưng gia chủ hoàn toàn có thể thu trọn bầu không khí thoáng mát tiện nghi dựa trên thiết kế nhà phố đẹp của Thịnh Nam Tiến.
Được biết đến và tìm hiểu Thịnh Nam Tiến qua các phương tiện truyền thông, anh Trần Văn Hùng đã liên hệ và đến trực tiếp văn phòng để dễ dàng trao đổi, nhận hỗ trợ tư vấn từ công ty.
Toàn bộ quy trình làm việc, báo giá khái toán, các công trình Thịnh Nam Tiến thiết – kế thi công được giới thiệu nhiều hơn để CĐT hiểu hơn về công ty. Chính sự minh bạch, rõ ràng trong cách làm việc, xem qua những sản phẩm thi công hoàn thiện anh Hùng đã quyết định ký kết hợp đồng thiết kế kiến trúc nhà 5x10m 3 phòng ngủ quy mô 1 trệt 2 lầu.
Phối cảnh 3D nhà 1 trệt 2 lầu dt 5x10
Mẫu nhà 5x10m 3 phòng ngủ được thiết kế điểm nhấn nổi bật với khối mảng tường tạo hình đơn giản nhưng vẫn bật rõ sự mạnh mẽ, kết hợp bồn tiểu cảnh xanh. Mặt tiền nhà đón nhận trọn vẹn vẻ đẹp sự thịnh vượng khang trang, hiện thực hóa cá tính của người chủ gia đình theo một phong cách riêng.

Ngắm nhìn từ xa thiết kế không chỉ phô diễn đường nét kiên cố mà tạo hình còn gây được ấn tượng bắt mắt nhờ hiệu ứng sắc trắng chủ đạo. Sự kết hợp ăn ý giữa gam màu trắng sáng cùng với sự góp mặt của vật liệu kính cường lực trong suốt, giúp ngôi nhà chinh phục mọi giác quan khi đứng trước thiết kế hiện đại này.
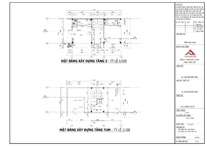
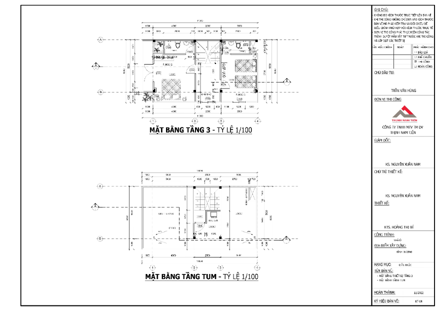
Mặt bằng bố trí công năng nhà 1 trệt 2 lầu 5x10m

Lầu 1 là 1 phòng khách,1 bếp + Tầng 2 là 1 phòng ngủ và nhà vệ sinh
Mặt bằng lầu 1 và lầu 2 đã được thiết kế theo nhu cầu gia đình . Tầng 1 là nơi sinh hoạt chung của mọi người. Tầng 2 thiết kế 1 phòng ngủThiết kế gọn gàng, sắp xếp hợp lí giúp căn nhà trở nên thoáng mát, rộng rãi hơn.

......

Phối cảnh nội thất nhà 5x10m

Mặt bằng nội thất tầng 1, phòng ăn
Phía trước căn nhà sẽ à không gian mà gia đình kinh doanh nên chúng tôi không lên thiết kế cho không gian này. Để dễ dàng hình dung rõ thiết kế ngôi nhà sau khi hoàn thiện, Thịnh Nam Tiến sẽ hỗ trợ gia đình phối cảnh nội thất bên trong để đem đến một cách nhìn tổng quan. Phòng bếp nho nhỏ có thể bắt gặp ở những mẫu nhà phố hiện đại ngày nay. Tiết kiệm không gian sinh hoạt nhưng vẫn đầy đủ tiện nghi.

Mặt bằng nội thất tầng 2, phòng ngủ 1


Mặt bằng nội thất tầng 3, phòng ngủ 2
Phòng ngủ tầng 2 thiết kế giành cho vợ chồng anh Hùng. Thiết kế thông minh với 1 cửa sổ, 1 cửa chính với khoảng cửa kính rộng, sử dụng rèm 2 cánh giúp CĐT chủ động trong việc lấy sáng và gió từ bên ngoài vào. Căn phòng nhìn trở nên sáng sủa, thoáng mát hơn.


Mặt bằng nội thất tầng 3, phòng ngủ 3
Phòng ngủ nhà phố 5x10m được bố trí độc đáo và khoa học, với quy diện tích phòng hơn 20m2 những đồ dùng như tủ quần áo , tab đầu giường, bàn học nhỏ gọn … sẽ chính là những đồ dùng nội thất tất yếu cho căn phòng nhỏ xinh của trẻ nhỏ
Hình ảnh thi công công trình 5x20m
Thi công xây dựng nhà phần thô sẽ là đề quan trọng cho tất cả các quy trình, hạng mục thi công sau này. Vì vậy toàn bộ công tác đều được kiểm tra, giám sát, đảm báo chất lượng, tiến độ công trình, càng chính xác thì những phần sau thi công càng thuận tiện, càng tiết kiệm chi phí và thời gian, giảm thiểu các vấn đề đến công trình.

Đan sắt móng cổ cột

Móng cọc được đặt sâu vào lòng đất nhằm đảm bảo sự chắc chắn cho công trình


Hoàn thành xong công đoạn đổ sàn đà kiềng

Thịnh Nam Tiến thi công đóng cốt pha dầm sàn

Đan sắt sàn và dầm sàn

Hình ảnh mặt tiền ngôi nhà đang được thi công công đoạn đóng cốt pha lên tầng

Qúa trình đổ bê tông tầng 2

Tưới ẩm bảo dưỡng bê tông

Trang thiết bị hiện đại chuẩn bị phục vụ cho công tác thi công

Căn nhà sau khi được tháo dỡ cây chống sàn

Sau khi hoàn thành xong công tác đổ móng sàn các tầng, Thịnh Nam Tiến tiến hành thi công xây tường cho ngôi nhà anh Hùng

Tiếp theo là tô trát tường

Căn nhà anh Hùng trong thiết kế 3D đang dần được lộ diện
Hình ảnh thi công và mẫu nhà hoàn thiện sẽ tiếp tục được cập nhật
Ngoài việc giám sát, kiểm tra từng hạng mục thi công. Các bảng báo cáo công việc hằng ngày sẽ được gửi đến CĐT để gia đình có thể nắm bắt tiến độ, giám sát hạng mục thi công ngay cả khi không có thời gian đến tận công trình. Với việc làm này CĐT hoàn toàn có thể theo dõi công trình mọi lúc, mọi nơi, ý kiến phản hồi và thắc mắc của gia đình sẽ được xác nhận nhanh chóng, hỗ trợ hợp tác công việc diễn ra dễ dàng
Để dễ dàng đánh giá năng lực thi công và tác phong làm việc tại Thịnh Nam Tiến. CĐT hoàn toàn có thể tham quan trực tiếp các công trình công ty thi công hoàn thiện, gia chủ có thể tự mình đến tham khảo hoặc Thịnh Nam Tiến vẫn hỗ trợ trở thành hướng dẫn viên cho gia đình.
Hy vọng mẫu nhà 5x10m 3 phòng ngủ bên trên sẽ mang đến cho CĐT những ý tưởng và trải nghiệm thiết kế giá trị cho công trình sắp tới của gia đình mình. Nếu mong muốn biết thêm chi tiết và nhận hỗ trợ tư vấn thiết kế thi công hoàn thiện nhà phố. Liên hệ ngay cho Thịnh Nam Tiến để hiểu rõ hơn toàn bộ quy trình làm việc, báo giá khái toán, những mẫu thiết kế nhà đẹp xu hướng 2023.